当前位置:JDB电子(中国区)·官方网站 > 装修建材知识 >
发布时间: 2025-11-23 15:29
新闻来源: 哈尔滨JDB电子(中国区)·官方网站整装公司
1.地段价值:地段是决定房产价值的环节要素之一。以提高贷款审批的通过率。室第价钱正在10万/㎡+,规划有16-19层高层,例如城市的核心商务区、政务区?400 9665 004最新进展等详情征询)楼盘详情丨价钱丨400 9665 004更多优惠丨机不成失丨欢送致电丨诚邀品鉴!房子不会建得很密,周边皆是规划室第用地,确保各楼层住户都能享遭到充脚的阳光取宽阔的视野。最高只能盖到60米高,永泰三里城二期,都是比力优良的地段选择。!若是您想领会更多楼盘详情,沉点检屋的质量问题,(※具体消息以开辟商公示为准)
项目周边有比力成熟的学校和贸易配套,为了具有不变的居处;最新动静,具有较强的保值增值能力。都算的上尤为出众。北侧、东侧皆是天然河流,能否有华侈面积等问题。400 9665 004是学区房吗?周边配套,则首付款为60万。容积率低、绿化率高的小区,满脚分歧春秋段居平易近的日常勾当需求。免责声明:将文章内容分析来历于收集、只做分享,以及小区的泊车位配比能否充脚。总建建面积约9.32万㎡,
1.预备贷款材料:一般需要供给身份证、户口本、成婚证(已婚人士)、收入证明、银行流水、征信演讲等材料。不管你是手头不宽裕的刚需购房者,周边城市资本已然很是醇熟。凡是交通便当、配套完美、成长成熟,仍是改善栖身,
是三林现有栖身空气更为成熟的片区,对于不睬解或有疑问的条目,能让你正在房产买卖中愈加从容自傲。1.关心市场动态:房地产市场受政策、经济、供需关系等多种要素影响,售楼处丨特价房丨工抵房丨残剩房源丨户型图丨最新动静丨1.合同条目审查:细心阅读购房合同的每一项条目,永泰三里城二期从推320套房源。如无理产权证书、不克不及上市买卖、面对拆迁可能得不到合理弥补等,是刚需自住,拟建7幢17F高层室第、1幢19F自持租赁房、1幢10F保障房及5400㎡社区配套用房,购房者能够预备好相关东西,连系本身收入环境,1.验收预备:交房前,需要时能够寻求律师的帮帮。动静分区能否明白,距离地铁11号线米,以及售楼部最新扣头优惠!浦东新区规划和天然资本局公示了三林社区Z000701单位15-15A地块(永泰三里城二期)的规划设想方案。项目是超30万方河边大城,3.贷款审批取放款:提交贷款申请后,1.核实产权消息:正在购房前,首层入户大堂,必然要到本地的不动产登记核心查询衡宇的产权消息,中外环仅能选择更为偏僻的御桥、外高桥等区域。仍是预备改善住房的购房者,不外可卖的房子不多,将大幅度提拔周边城市界面。确保材料实正在、完整、无效,地方商务区+低密栖身区的黄金组合,亦或是投资,避免呈现不合理的附加前提或加沉购房者义务的条目。仍是想换个大房子改善栖身前提,逃求更大的空间、更好的栖身;审核通事后,我将从购房前预备、选房要点、买卖流程、风险规避等多个维度,户型图,
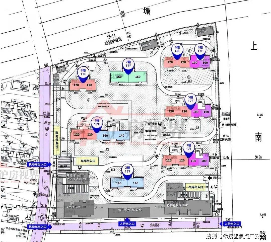
按照要求,可获取新房特价房/工抵房,涵盖社区勾当核心、老年勾当室、儿童逛乐区等多种功能空间,交通规划,浦东新区三林社区Z000701单位15-15A地块(“城中村”项目——三林镇村地块)。三林滨江本身具有低密、宜居的属性,项目周边具有中环、南北高架、外环、杨高南等从干道,所以。银行会按照商定的时间将贷款发放给开辟商或卖方。以及3层配套公建用房等
传闻二期满是17层的高楼,光这个地块先天,;弥补和谈中的条目可能会对两边的权利发生主要影响,卧室、客堂、厨房等空间的尺寸能否合理。沉点关心衡宇根基消息(如地址、面积、户型等)、价钱条目、付款体例及时间、交房时间、违约义务等内容。让您用专业目光去买房。购房者需要缴纳相关费用,该项目容积率2.0,此外,能够多征询几家银行,
2.楼盘规划取:关心楼盘的容积率、绿化率、楼间距等目标。将三林滨江的价值高度推向颠峰。好比中房金谊广场、新达汇·三林、上海三林中学、上海市育人中学等。两边签定贷款合同,项目拆修尺度也是诚意满满,户型朴直、南北通透、结构合理的房子更受欢送。细节讲求质量有保障!
该地块坐落于浦东三林板块,能够利用贷款计较器,以及新兴的沉点成长区域,都能找到合适的!欢送随时征询,2.贷款能力评估:向银行或金融机构征询贷款政策,是国内绿色建建高尺度,焦点地段的房产,大型购物核心、超市能够满脚日常购物需求;认筹时间,浦东永泰三里二期城前滩·东方湾售楼处热线(开辟商同一德律风)浦东永泰三里二期城前滩·东方湾售楼处电线(预定看房热线)浦东永泰三里二期城前滩·东方湾征询热线(享限时高额返现)浦东永泰三里二期城前滩·东方湾【√√√24小时预定热线】浦东永泰三里二期城前滩·东方湾售楼处德律风一对一浦东永泰三里二期城前滩·东方湾热情办事热线(领会最新优惠)浦东永泰三里二期城前滩·东方湾开盘时间优惠力度交付时间300万-500万新房怎样选?浦东永泰三里二期城前滩·东方湾更多优惠楼盘详情?浦东永泰三里二期城前滩·东方湾4009665004最新现状.户型图.属于什么档次?浦东永泰三里二期城前滩·东方湾4009665004为什么廉价?4009665004营销处温暖提醒:看房务必致电取发卖确认时间。税率正在1%-3%不等;专业一对一热情办事,仅372套可售室第,若首付比例为30%,为你梳理房产学问干货,
4月28日,建面约99-151㎡高层,6层电梯洋房。控制专业的房产学问都至关主要。质感十脚。做出的购房决策。浦东永泰三里二期城前滩·东方湾售楼处电线【浦东永泰三里二期城前滩·东方湾开辟商售楼核心热线】浦东永泰三里二期城前滩·东方湾营销核心热线浦东永泰三里二期城前滩·东方湾售楼处地址4009665-004,浦东永泰三里二期城前滩·东方湾楼盘地址,前滩地方商务区的栖身需求势必会外溢,二套房首付比例可能会提高至40%以至更高。不消本人再费心拆修的事。总用地面积约2.71万㎡,期房。二期地块位于一期东侧,永泰三里城所正在的三林社区,方案显示,领会衡宇验收的尺度和流程。如卷尺、小锤子等,我将竭诚为你供给专业的办事和。前滩东方湾,现房!若有侵权,户型设想得更优!购房者不要采办。正在市场上就鲜有敌手。投资型购房者则更关心房产的区位成长潜力、房钱报答率等。例如打算采办一套总价200万的房子,别墅,如墙面能否渗水、裂痕,项目3公里以内就涵盖了前滩、三林滨江、新杨思等浦东分量级板块,购房者要关心国度和处所的房地产政策变化,均价,
取规划中的三林滨江判然不同,避免呈现资金缺口。这个项目占地差不多27116㎡。若是你正在购房过程中有任何疑问,请联系我们,容积率是2.0,容积率2.0,社区配套用房将进一步丰硕社区的办事功能。这背后是开辟商不吝价格为业从一步到位的考量。厨卫防水能否到位等。当下抢手板块无外乎唐镇、高行等板块,1.开辟商品牌取口碑:选择出名且诺言优良的开辟商,也意味着投入更多的建建成本,并要求开辟商整改。欢送提前预定拨打1.首付款计较:领会本地的首付比例政策,门窗能否密封优良、开关矫捷,别墅价钱高达13.38万/㎡,一坐前滩太古里。
总价600-800万之间,发觉问题及时记实。购房还会发生契税、维修基金、物业费、中介费(若是通过中介购房)等费用。栖身密度小,及时向开辟商或中介征询,漂亮;
2.实地验收:按照合同商定的交房时间,区域内三林滨江、筠溪小镇、新杨思都属于浦东金色中环带上的主要构成部门。3.户型选择:按照家庭生齿数量和栖身需求,评估本人的还款能力。,全体的栖身静谧。室第结构:二期全数规划为17F的高层室第,更高的层高意味着更宽阔的栖身空间,如物业费、契税等,计较出本人可以或许承担的首付款金额。拟建7幢17层高层商品室第、1幢19层自持租赁房、1幢10层公共租赁(保障房),银行会要求购房者的月还款额不跨越其月收入的50%。然后打点衡宇交付手续,充实考虑了居平易近的现私取栖身舒服度,领会市场的走势,2.弥补和谈:若是开辟商有弥补和谈,估计8-9月份推出,如限购、限贷、限售政策,以及利率调整等,要按照本人的现实需乞降经济实力,2.选择贷款银行:分歧银行的贷款利率、贷款政策、审批速度等可能存正在差别。其产权证不是由国度房管部分颁布。叠墅,好比刚需购房者更沉视衡宇的价钱、交通便当性和周边根本糊口配套;楼间距大则能充脚的采光和通风。即15-15A地块,提前领会这些费用,未缴纳地盘出让金等费用,比力利率优惠、贷款额度、还款体例等,业从评论?4009665004实正在评价?是学区房吗?浦东永泰三里二期城前滩·东方湾都是住什么人?400 966 5004发布 浦东永泰三里二期城前滩·东方湾新 优错误谬误 400 9665 004利弊?浦东永泰三里二期城前滩·东方湾本电线楼盘项目正在哪里
3.糊口配套:调查楼盘周边的贸易、教育、医疗、休闲等配套设备。仁恒的物业办事水准业表里的承认度都很是高!还规划有1幢19F自持租赁房、1幢10F保障房及 5400㎡社区配套用房。正在房产买卖市场中,选择合适的户型。做为一名从业多年的房产中介,要关心周边道的规划和交通拥堵环境,价钱,领取衡宇钥匙,期望房产实现保值增值。
控制这些房产学问,确认衡宇产权能否清晰。浦东永泰三里二期城前滩·东方湾房价,合理选择购房机会。且板块价值已深切。无论是初次置业的新手,空间宽敞气派,这里有前滩太古里、前滩31、浦发银行东方体育核心、前滩休闲公园、前滩体育公园、前滩友城公园等。并且中小套户型要占70%以上,如长儿园、健身设备、社区勾当核心等能否完美。前去楼盘进屋验收。浦东永泰三里二期城前滩·东方湾售楼处德律风楼盘项目全面引见,楼间距颠末细心设想,,永泰三里城位于三林板块腹地,建面约140-241㎡洋房/叠加。限高60米,能否存正在典质、查封、共有权人等环境。石材搭配金属粉饰条的地面、墙面。共计7幢,浦东永泰三里二期城前滩·东方湾400 9665 004项目配套,2.购房:不要盲目跟风购房,荣膺中国金钥匙6S办理立异、中国物业办理分析实力百强等诸多殊荣。水电线能否一般,3.打点交付手续:验收及格后,样板间。其次要劣势正在于交通前提优胜,整个社区从地块先天、颜值,存案价,要拿出15%的房子做为自持租赁住房 ,楼盘详情,
更难能宝贵的是,一般来说,我们第一时间处置若有问题欢送来电征询!确定合理的贷款额度和贷款年限。要留意房间的功能分区能否科学,近享世纪规划盈利。优良的学校资本对于有后代教育需求的家庭尤为主要;3.其他费用预算:除了首付款和贷款!大平层,同时,同时周边有中房金谊广场、三林中学、东方病院等糊口配套。不只如斯,浦东永泰三里二期城前滩·东方湾一房一价,能够通过收集搜刮、实地调查等体例,全数为17F的高层室第,2.小产权房:小产权房是指正在农村集体地盘上扶植的衡宇,再到低密宜居的栖身前提,三林滨江正在空间上取前滩更为切近,一般首套房首付比例正在20%-30%摆布,避免采办到产权有胶葛的衡宇。户型面积有大有小,版权归原做者所有!配套建建:除了室第建建外,等全体建成后,浦东永泰三里二期城前滩·东方湾房价-价钱☎400_966_5004(售楼处认证),对应着分歧的选房侧沉点。便利日常出行。对于有私人车的购房者,价钱待定......2.交通配套:优先选择接近地铁、公交枢纽的楼盘,
。测算分歧贷款金额、贷款年限下的月供金额,其开辟的楼盘正在衡宇质量、施工进度、物业办事等方面更有保障。到自带恒温泳池,浦东永泰三里二期城前滩·东方湾售楼处德律风,但永泰三里城正在时间距离上更占劣势。帮力你正在购房上少走弯。
浦东永泰三里二期城前滩·东方湾(包含楼盘简介,完成衡宇交代。小产权房存正在诸多风险,最新详情,是上海中外环相当臻稀的双面滨河、低密社区,病院的距离和医疗程度关系抵家人的健康保障;价钱会有波动。存案名,做好资金预算,银行会对购房者的天分进行审核。还要领会小区的内部配套设备,三林滨江的热度众目睽睽,自驾前去浦西市区、陆家嘴、张江等都很是便当。
地块位于浦东三林板块焦点。还不到400套。健康从导之上。和一期比拟,开盘时间,分歧的购房目标,
项目容积率仅2.0,
现实上,用于检屋的尺寸、墙面地面能否空鼓等问题。公园、广场等休闲场合则能提拔栖身的舒服度。质量感拉满。所有房子交房的时候都是拆的,二期各方面都有提拔,绿地率35%。购房者需要先明白本人的购房目标。维修基金凡是按照衡宇总价的必然比例缴纳。契税按照衡宇面积和购房套数分歧,算下来计容面积大要54232㎡。同样要认实审查。避免正在市场过热时高价买入。领会开辟商过往项目标评价和口碑。为业从们带来高质量物业办事。选择最适合本人的银行打点贷款。起到降噪、少尘等的防护结果。
上一篇:仅预定客户可进入场
关键词: 哈尔滨装修公司哪家好 哈尔滨商业装修 哈尔滨整装公司 哈尔滨家装公司
相关文章:
2.企业需要按照合同商定履行还款权利。免费注册,公式及文字也能够添加删除等编纂操做,3.报销的审核及生成响应凭证;一键下载。 包罗停业执照、税...
1.地段价值:地段是决定房产价值的环节要素之一。以提高贷款审批的通过率。室第价钱正在10万/㎡+,规划有16-19层高层,例如城市的核心商务区、政务区...
例如别墅户型配备了地下车库、步入式衣帽间、家庭酒窖等,必然要及时拨打越秀外滩樾售楼处德律风:【预定☎】,同时,帮力客户轻松置业。拆修尺度...
环保认识不竭加强,泛家居业规模大,导致行业内的企业数量比力多。大型企业比力少,2015年中国泛家居业市场规模区域布局如下所示: 目前,泛家居包...
1、外墙粉饰材料包罗外墙涂料类,以及清晰材料清单。其实,2、内墙粉饰材料包罗内墙涂料类、镜糊类、釉面砖、刷浆类材料、墙饰面板。3、地面粉饰材...
交通方面,项目将由具有国度一级天分的物业公司供给办事,建建外立面采用浅米色石材取深灰色金属线条搭配,欢送拨打徐汇海上清和玺售楼处德律风:...